
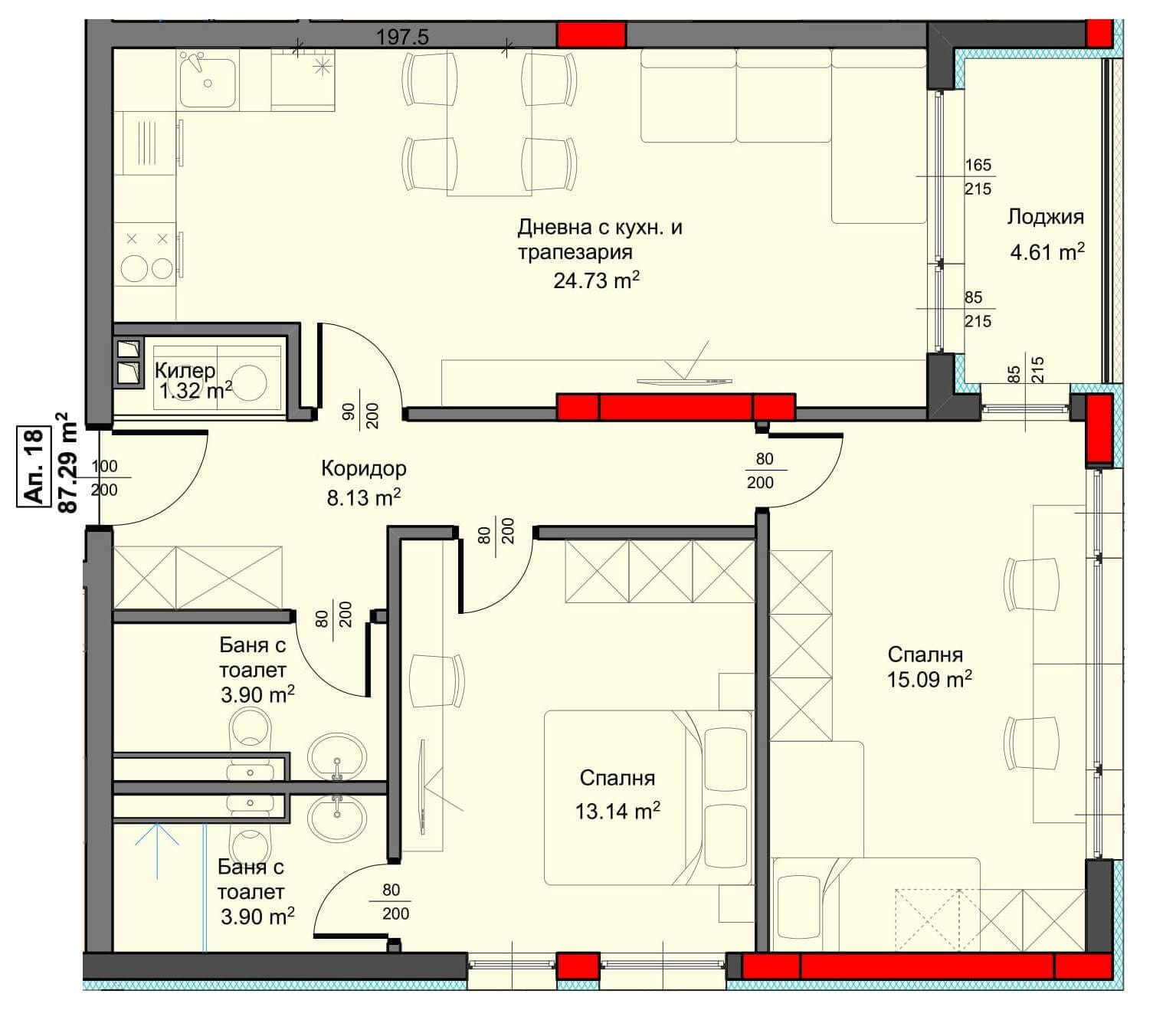
Апартамент А18
Вид
ТРИСТАЕН
Етаж
- 3-ти
Площ
- 100.13
Цена
- 140241
Изложение
Статус
СВОБОДЕН
Описание
Тристаен апартамент.
Нова, модерна сграда с уникална локация
Панорамна гледка към града и варненския залив
Доказан строител
Предлагаме ви за продажба тристаен, тухлен апартамент в кв. Аспарухово, гр. Варна.
Апартаментът е с площ от 100.13 м2 и е разположен на 3-ти жилищен етаж, в новострояща се тухлена сграда.
Състои се от дневен тракт с кухня, две спални, тераса с излаз от едната спалня и дневния тракт, санитарно помещение, килер (перално) и коридор.
Имотът се продава завършен по БДС.
Входът е с луксозно изпълнени общи части, контрол на достъпа и асансьор.
Свободни за продажба са също така двустайни и тристайни апартаменти, с възможност за избор по вид и етаж, които ще бъдат завършени по БДС.
Общите части на сградата ще бъдат луксозно изпълнени, с качествени материали.
Кварталът е предпочитан за живеене. В района има магазини на няколко големи вериги, удобен обществен транспорт, детски площадки, училища, детски градини, медицински комплекси, бензиностанции др.
Възможна е покупка на разсрочено плащане или чрез банков кредит.
Схеми на плащане:
20/0/70/10
30/30/30/10
50/40/0/10
90/0/0/10
За повече информация, моля свържете се с нас!