Начало » Каса Елара » Апартамент A1

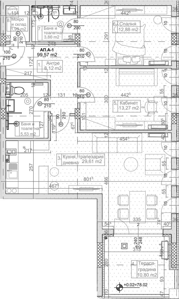
Апартамент A1
Вид
ТРИСТАЕН
Етаж
- Партер
Площ
- 120.56
Цена
- 200000
Изложение
Статус
СВОБОДЕН
Описание
Тристаен апартамент
Нова, модерна сграда с уникална локация
Панорамна гледка към града и варненския залив
Доказан строител
Предлагаме ви тристаен апартамент за продажба в м-т Манастирски рид, гр. Варна.
Апартаментът е разположен на партерния етаж и се състои от:
– Антре
– Кухня, трапезария, дневна
– Две спални
– Мокро помещение (склад)
– Две санитарни помещения
– Тераса-градина
Имотът се продава завършен по БДС.
Входът е с контрол на достъпа и асансьор.
Свободни за продажба са също така двустайни, тристайни и четиристайни апартаменти, с възможност за избор по вид и етаж, гаражи и паркоместа, които също ще бъдат завършени по БДС.
Изпълнението на общите части на сградата ще бъде луксозно, с използване на висококачествени материали.
Срокът за завършване на сградата е 30 април 2027 година.
За повече информация, моля свържете се с нас на посоченият телефон!