Начало » Каса Елара » Апартамент A10

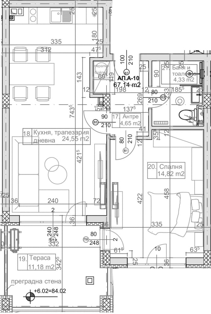
Апартамент A10
Вид
ДВУСТАЕН
Етаж
- 2-ри
Площ
- 81.29
Цена
- 145000
Изложение
Статус
СВОБОДЕН
Описание
Нова, модерна сграда
Двустаен апартамент
Зелени площи, детски кътове, зона за отдих
Удобна локация, с бърз и лесен достъп до града
Открити и закрити паркоместа
Модерна архитектура с функционално разпределени помещения
Доказан строител
Предлагаме ви за продажба двустаен апартамент в м-т Манастирски рид, гр. Варна.
Апартаментът е разположен на втори етаж и се състои от:
-Антре
– Кухня, трапезария, дневна
– Спалня
– Санитарно помещение
– Тераса
Имотът се продава завършен по БДС.
Входът е с контрол на достъпа и асансьор.
Свободни за продажба са също така двустайни, тристайни и четиристайни апартаменти, с възможност за избор по вид и етаж, гаражи и паркоместа, които също ще бъдат завършени по БДС.
Изпълнението на общите части на сградата ще бъде луксозно, с използване на висококачествени материали.
Срокът за завършване на сградата е 30 април 2027 година.
За повече информация, моля свържете се с нас на посоченият телефон!